Matching the right business
with the right space
Development Properties
Property ID : D5

High Density Residential Site
16th Ave. East & 10th St. East, Owen Sound,ON
Zoning: R2
High Visibility. Directly Beside Seasons Retirement Residence
Adjacent to Hospital, Elementary, Secondary and Post-Secondary Schools nearby.
10th St. East Frontage is Traffic Route Directly to Walmart and Home Depot.
1.5 Acres
Property ID : D6

Retail / Commercial / Industrial Site East Ridge Business park: Lots for Sale, Build to Suit
1628 28th Ave. East Owen Sound,ON
Zoning: M1
High Visibility - Corner of Hwy 26 & 28th Ave. East
Newly Developing Owen Sound Business Park.
Adjacent to VanDolders Home Team location
FULLY SERVICED.
1 to 25 Acre lots available
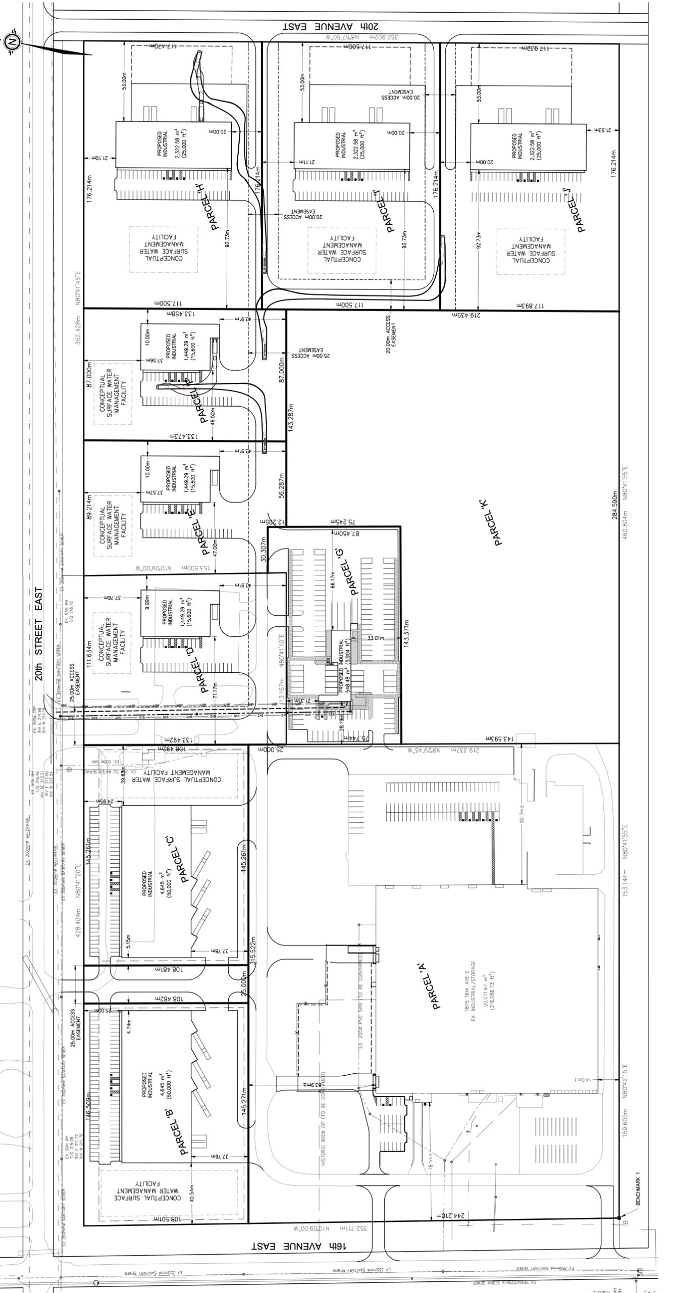
Property ID: D1

Peninsula Pro Growth Business Park Heated Storage & Light Industrial
1799 20th St East Owen Sound, ON
Zoning: Industrial/Commercial
Heated Secure Storage and Light Industrial. Inquire About Development Opportunity ( 40 Acres). Clear Span, 24ft Ceiling Height. Ability to demise. Individual Meters. Sprinkler.
Will Build to Suit.

Property ID: D2


Restaurant Development Site
16th Ave. East & 10th St. East, Owen Sound,ON
Zoning: C1
High Visibility. Marriott Suites Starting Spring 2021
All Services Fronting 16th Ave. East. Commercial Property Depth is 55m x 53m Fronting 16th Ave. East, 82 Home Residential Sub-Division Abutting Rear of Property. Marriott Suites Hotel abutting property to the West
LEASED

OUR PARTNERS
ABOUT US
The vision behind ANDPET REALTY is simple: Make sure that the people who lease or develop with ANDPET are successful.
Success for our client equals success for ANDPET REALTY. But Peter Van Dolder takes that commitment one step further, cultivating lasting business relationships with his clients.
The process of helping them every step of the way to cut through the red tape and reach their goals on time and on budget is really his greatest service.











